Хлебопекарное оборудование
поставки в Казахстан
Лучший дилер 2012 года в Республике Казахстан
Главная
Продукция
Технологии
Запчасти
О компании
Контакты
703 мультиротационная печь
724 двойная ротационная печь
725 одинарная ротационная печь
726 одинарная ротационная печь
739 ротационная минипечь
Ярусная печь
Расстойные шкафы P7000
Климаторы
Вакуумное охлаждение
Система объемного парообразования HVS System
Система управляемого потока воздуха TCC System
Клиновая система крепления
Теплообменник
Миасс
Челябинск
Екатеринбург
Уфа
Москва
Санкт-Петербург
Саратов
Пермь
Казань
Новосибирск
Краснодар
Красноярск
Владивосток
Ростов-на-Дону
Астана
Алматы
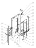
Запчасти к хлебопекарным печам Revent 724
продажа в Казахстан
ВЕНТИЛЯТОР
ТЕПЛООБМЕННИК
ПАРОГЕНЕРАТОР (СТАНДАРТ)
ДВЕРЦА ПЕЧИ (дверной проем)
ДВЕРЦА ПЕЧИ (дверь)
ПОДЪЕМНОЕ УСТРОЙСТВО ТЕЛЕЖКИ
ПОДЪЕМНОЕ УСТРОЙСТВО ТЕЛЕЖКИ
УЗЕЛ ВРАЩЕНИЯ ТЕЛЕЖКИ
ПАНЕЛИ РАСПРЕДЕЛЕНИЯ ВОЗДУХА
ВНЕШНИЕ ПАНЕЛИ
ПЛАТФОРМА
ПЛАТФОРМА
ПАНЕЛЬ УПРАВЛЕНИЯ
ПАНЕЛЬ УПРАВЛЕНИЯ
ВНЕШНИЕ НАВЕСНЫЕ ПАНЕЛИ
English
Svenska
US
© 2024 Revent International / ИП Присяжный В.С. ТМ «Макиз-Урал»